Проектирование фасадов по всей России
Проектирование фасадов зданий любой сложности:
от частных резиденций до жилых кварталов и бизнес/административных зданий федерального значения.
Разрабатываем рабочую документацию (КМ, КМД), внедряем BIM-технологии и защищаем проекты в экспертизе. Гарантируем эстетику, пожарную безопасность и экономию материалов до 15% за счет точных расчетов, грамотной оптимизации материалов.
Проектируем вентилируемые и светопрозрачные фасады с 2006 года, профессионально оказываем услуги по разработке рабочей проектной документации на фасады по всей России.
Проектируем фасады из композита, керамогранита, металлокассет, стеклофибробетона, клинкерного кирпича, натурального гранита на алюминиевых и оцинкованных навесных фасадных системах. Работаем только с сертифицированными материалами и фасадными системами.
Вентилируемые и светопрозрачные фасады - это сложные инженерные конструкции, без комплекта рабочей документации, рабочего проекта на фасад, качественно смонтировать фасад и реализовать все архитектурные решения невозможно.
Выполняем полный комплекс проектных работ: от разработки дизайн-проекта на фасад и архитектурной визуализации; до разработки комплекта рабочей документации на фасады (рабочий проект), выбора и оптимизации фасадных материалов, и технического сопровождения на период монтажных работ.
![]() |
![]() |
![]() |
![]() |
| 15+ лет на рынке фасадных решений | 500+ реализованных объектов по всей России и СНГ | 1 000 000+ м² запроектированных фасадов | 0 отказов в прохождении госэкспертизы |
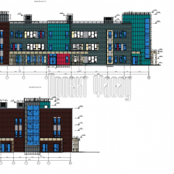
Cостав проектной документации проект фасада:
- Прочностные расчеты, испытания,
- Раскладка облицовочного материала,
- Монтажные схемы (расстановка по фасадам кронштейнов и направляющих),
- Узлы примыканий, креплений (разрабатываем не типовые узлы под конкретный проект),
- Спецификация на материалы (оптимизируем материалы, снижаем % неделовой обрези),
- Задание на изготовление витражных конструкций в цех (для светопрозрачных конструкций),
- Задание на изготовление кассет (для вентилируемых фасадов),
- Ведомость работ,
- Пояснительный записка.
Для заказа проекта на фасад здания звоните: +7 (343) 213-93-04
ПОРЯДОК РАБОТЫ
|
|
![]() |
|
|
Аудит и ТЗ |
Коммерческое предложение |
Разработка проекта |
Выдача документации |
|
Анализируем архитектурное решение и исходные данные |
Составляем график работ и фиксируем стоимость. |
Разрабатываем разделы КМ, КМД, узлы и спецификации. |
Вы получаете готовый проект, для согласования, закупки материалов и монтажа. |
ПРИ ВЫПОЛНЕНИИ РАБОТ ОБЕСПЕЧИВАЕМ
![]() |
КОНТРОЛЬ НАД РАСХОДАМИ спецификация материалов, подготовлена на основе проработанных проектных решений, прочностных расчетов и геодезии, что снижает вероятность превышения бюджета до минимума |
![]() |
ТОЧНАЯ РЕАЛИЗАЦИЯ АР рабочая документация разрабатывается в точном соответствие с архитектурным решением, без отступлений от концепции ради простого монтажа |
![]() |
КОНТРОЛЬ НАД МОНТАЖОМ документация для монтажа, проработана для конкретного объекта и позволяет минимизировать ошибки монтажа |
![]() |
ПРОСТОЕ СОГЛАСОВАНИЕ наши проекты на фасады соответствуют действующим требованиям и обеспечивают простое согласование в контролирующих органах |
![]() |
ТЕХНИЧЕСКАЯ ПОДДЕРЖКА техническое сопровождение на время монтажных работ в режиме 24/7 |
![]() |
КРАСИВЫЙ И КАЧЕСТВЕННЫЙ ФАСАД все, перечисленные выше, преимущества позволяют смонтировать фасад по технологии, исключить уменьшение срока его нормальной эксплуатации и вероятность преждевременного ремонта |




















